A construção dos novos prédios da sede completou um ano em julho. E, pelo andamento da obra percebe-se que a mesma será entregue dentro do prazo de 18 meses, ou seja, dezembro de 2019.
A fase de acabamentos iniciou em junho (2019), com aplicação de pintura e cerâmica nos blocos B e A. Dia após dia o vão central dos prédios ganha forma com a construção do jardim escalonado, detalhe que faz a diferença deixando ainda mais agradável a temperatura entre os blocos, principalmente nos dias quentes de Verão.
Pelas imagens nossos associados já podem ter uma ideia da vista que desfrutarão ao se hospedarem nos novos prédios. A APCEF/SC terá um marco histórico com a inauguração da obra, porque, além de atender a um anseio dos associados, o novo espaço para hospedagem traz modernidade e embelezamento à sede. “Estamos satisfeitos com o progresso da obra e atuando firme para que os apartamentos estejam com tudo pronto para temporada 2020”, destaca o diretor-presidente Marco Zanardi sobre a construção realizada com recursos próprios.
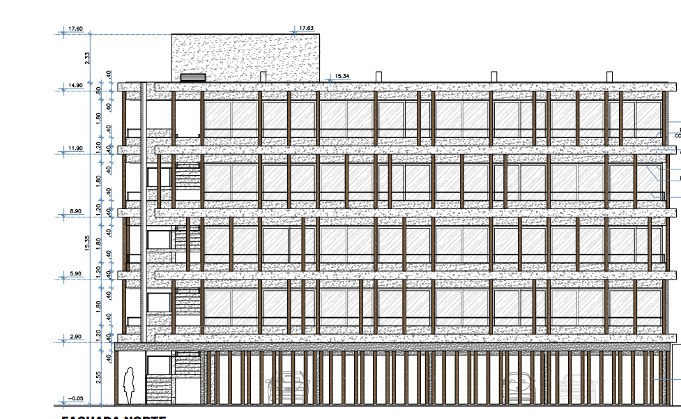
Confira a planta baixa dos blocos:
APCEF_02-22_PLANTA BAIXA TÉRREO
APCEF_03-22_PLANTA BAIXA 1ºPAVIMENTO GERAL
APCEF_04-22_PLANTA BLOCOS 1º PAVIMENTO
APCEF_05-22_PLANTA BLOCOS PAVIMENTO TIPO
APCEF_06-22_PLANTA BLOCOS 4º PAVIMENTO
APCEF_07-22_PLANTA DE COBERTURA
Assista ao vídeo do projeto arquitetônico


